
Prelepi domovi nisu samo luksuzne vile ili skupi stanovi – ono što je važno da biste i vi imali dom vredan divljenja je da najbolje iskoristite prostor koji imate. Umesto da pokušavate da uglavite glomazne komade nameštaja ili napadne dezene u mali prostor, koristeći neutralne boje, jednostavan dizajn, uz dovoljno polica i prostora za skladištenje, čak i jednosoban stan može postati dom iz snova.
Predlažemo dva sjajna rešenja koja je kreirao “Curly Studio” koja dokazuju da i mali stan može biti i prelep i funkcionalan.
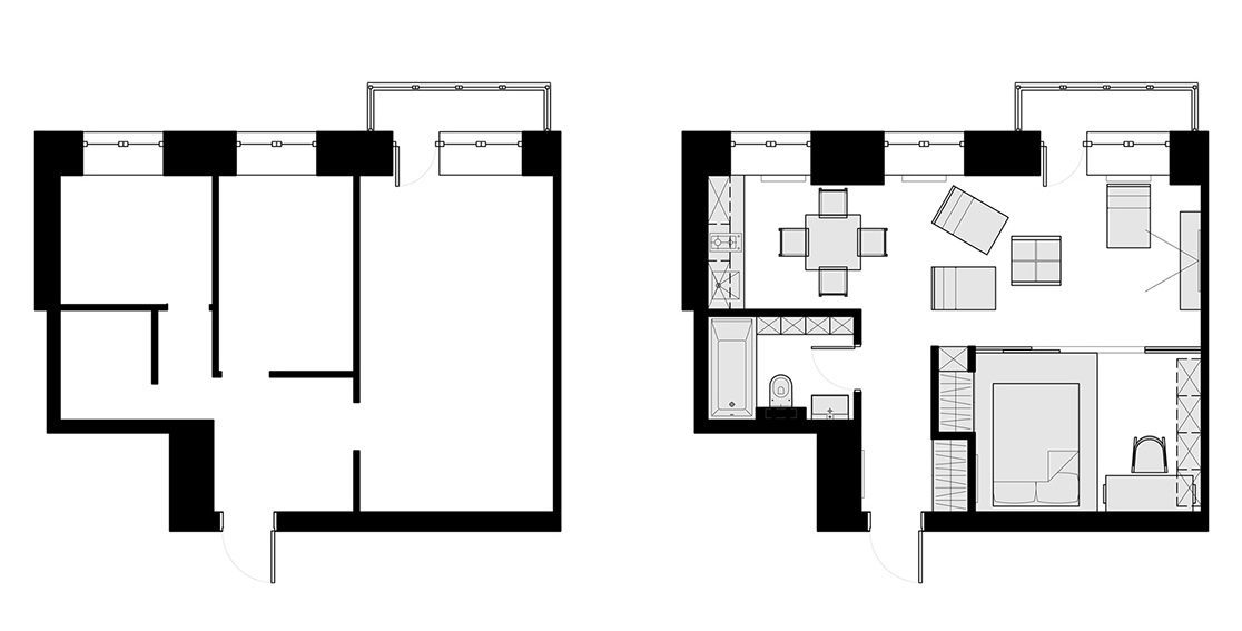
1. Multifunkcionalne police
Prvi stan zauzima površinu od svega 32 kvadrata. Zona za spavanje sa krevetom je odvojena od ostatka stana otvorenim policama koje pružaju dosta mesta za izlaganje i skladištenje stvari.

Otvorene police su odlično rešenje za pregrađivanje dugačkih prostorija sa jednim izvorom prirodne svetlosti jer čine da prostor izgleda veće i svetlije.

Trpezarijski sto za dvoje koji se sklapa kada nije u upotrebi je praktično rešenje za usku kuhinju.

Klizna vrata odvajaju malo kupatilo koje je smešteno iza kuhinje. Nasuprot kupatila nalazi se otvoren garderober sa policama koje ispunjavaju celu prostoriju.




Plan stana

2. Stakleni zidovi
Drugi stan je nešto veći i se prostire na 40 kvadratnih metara. Umesto polica, za pregrađivanje ovog stana dizajneri su upotrebili klizni stakleni zid, koji razdvaja spavaću sobu od dnevnog boravka.

U dnevnoj sobi, interesantan klub sto služi i za skladištenje i organizaciju.

Zona za rad i spavanje čine miran kutak izdvojen od ostatka stana. Krevet je izdignut na drvenu platformu koja služi i za skladištenje. Različiti nivoi ove dve zone stvaraju iluziju podeljenosti prostorije.

Stolica je odabrana tako da može u potpunosti da se podvuče pod radni sto kada nije u upotrebi.

Svetlo drvo, beli zidovi i obilje prirodne svetlosti čine da boravak u maloj kuhinji bude prijatan.

Geometrijske pločice postavljene na jedan deo zida u kupatilu pružaju živost prostoru.
Veliko ogledalo kod ulaza čini da uzan hodnik deluje veće i svetlije.



Plan stana

Foto: home-designing.com







